Theme Settings

Mode Layout
Theme color
Choose your colors
Background Color:
Скинути
Буферная емкость KHT HPT 200

Теплохолодоаккумулятор KHT HPTD 200



21 150,00 ₴

Теплохолодоаккумуляторы серии НРTD предназначены для работы с тепловым насосом.
Изоляция выполнена из твердого вспененного полиуретана, позволяет работать на тепло и
на холод в диапазоне температур от 6°С до 95°С.
Особым отличием данной серии буферных емкостей является расположение патрубков
подключение потребителей и источников энергии под углом 90°,
что облегчает оптимальное монтаж емкости в котельной.

Теплохолодоаккумулятор  объемом 200 л.
Класс энергоэффективности изоляции — B

Кількість
Останні товари на складі


 

Только сертифицированное оборудование

 

Доставка курьерскими службами «Новая Почта», «SAT»

 

Бесплатные консультации

 

Оплата: наличными при получении, безналичный перевод, оплата через банк, предоплата

Буферная емкость в системе с тепловым насосом нужна или нет?

В системах отопления где источником тепла является твердотопливный котел, применяя емкость, показало маскимальный эффект и стало незаменимой частью для комфортного отопления и даже обеспечения горячей воды. Давайте рассмотрим, если основным источником тепла является тепловой насос.

Преимущества применения буферной емкости, теплохолодоаккумулятора:

  1. Оптимальный процесс работы теплового насоса. Дополнительное количество воды за счет буферной емкости в системе отопления увеличивает время между отключением и включением теплового насоса, что приводит к оптимальному режиму работы теплового насоса, защищая компрессор от тактования. Что приведет к увеличению срока эксплуатации теплового насоса и экономии электроэнергии..
  2. Накопление энергии. Эксплуатируя тепловой насос, тепловая энергия убирается из окружающей среды. В холодный период года конденсат замерзает на испарителе теплового насоса, что приводит к снижению мощности и эффективности теплового насоса. Чтобы избежать этого, тепловой насос запрограммирован на автоматическое размораживание режим (Defrost). При этом тепло направляется в испаритель, чтобы избавиться от льда. Тепловой насос берет тепло из системы отопления, тем самым охлаждая ее. При использовании буферной емкости тепло берется из емкости без охлаждения отопительной системы.

  3. Альтернатива при ремонте и сервисе теплового насоса. Тепловой насос как любой источник тепла нуждается в сервисе или выходит из строя. Время сервиса и устранение неполадок может занять длительное время. Возникает вопрос, чем заменить тепловой насос на время сервиса или ремонта. Решением является установкой в ​​буферную емкость электрического тена, который на время заменит или поддержит систему отопления и водоснабжения в плюсовой температуре. Особенно такое техническое решение актуально, когда сервис или ремонт проходят в холодное время года.
  4. Буферная емкость разделяет контур теплового насоса и контур отопления, выполняя функцию гидрострелки, обеспечивая стабильный проток через тепловой насос, даже если термоголовки на радиаторах закрыты и перекрыт трехходовым теплый пол.

Недостатки применения буферной емкости, теплохолодоаккумулятора:

  1. Увеличивает бюджет реализации проекта.
  2. Занимает место в топочной.

В этой статье я дал совет на важнейшие вопросы, с которыми сталкиваются при принятии решения, касающиеся буферной емкости, теплохолодоаккумулятора для теплового насоса.

Всегда возникают дополнительные вопросы, на которые я, Кузнецов Александр, готовый ответить.

097 353 04 31 (Киевстар) Viber, Telegram 050 214 38 84 (Vodafone)

За 10 лет работы ООО «Верме» реализовано 1000 проектов. Мы работаем по всей Украине. Наши работы можно увидеть в городах: Киев, Днепр, Черкассы, Умань, Полтава, Винница, Ивано-Франковск, Хмельницкий, Черновцы, Житомир, Тернополь, Ровно, Луцк, Львов, Ужгород, Городище, Маневичи, Смела, Канев, Миргород, Никополь, Лубны, Бердичев, Казатин, Погребище, Самбор, Каменец-Подольский, Берегово, Овруч, Бережаны, Ямполь, Бершадь, Тетиев, Боярка, Свалява, Броды, Рогатин, Бровары, Тростянец, Буча, Хотин, Винники, Гадяч, Хмельник, Гайсин, Стрый, Глухов, Сумы, Городок, Городок, Зборов, Ирпень, Хорол, Казатин, Каменка, Теребовля, Камень-Каширский, Карлока, Павлоград, Киверцы, Коломыя, Одесса, Коростень, Малин, Мена, Могилев-Подольский, Мукачево, Нетешин, Червоноград, Новояворовск, Обухов, Погреб, Снятын, Тальное, Турка, Украинка, Фастов, Ходоров, Хуст, Чегирин, Яготин.

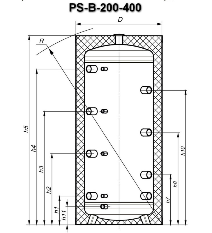
Технические характеристики буферных емкостей серии HPTН 60-400 литров:

Характеристика
Ед.изм.
Номинальный объем, л
НРТН 60 100 120 150 200 300 400
Объем л 61 93 114 154 232 338 408
Масса кг 14 16 24 30 43 53 60
Диаметр, D, мм 500 570 570 570 634 732 732
Высота, H, мм 530 577 690 893 1369 1405 1655
Патрубок h1 мм 6/4 / 212 6/4 / 231 6/4 / 236
Патрубок h2 " / мм 6/4 / 516 6/4 / 534 6/4 / 619
Патрубок h3 " / мм 6/4 / 819 6/4 / 837 6/4 / 1002
Патрубок h4 " / мм 6/4 / 1122 6/4 / 1141 6/4 / 1386
Патрубок h5 " / мм 5/4 / 1360 5/4 / 1396 5/4 / 1646
Патрубок h7 " / мм 6/4 / 364 6/4 / 382 6/4 / 427
Патрубок h8 " / мм 6/4 / 667 6/4 / 686 6/4 / 811
Патрубок h10 " / мм 6/4 / 971 6/4 / 989 6/4 / 1194
Патрубок h11 " / мм 3/4 / 136 3/4 / 155 3/4 / 155
Патрубок для датчика " 1/2 1/2 1/2 1/2
Радиус кантования мм 730 811 895 1060 1501 1576 1802
Рабочее давление МПа 0.3 0.3 0.3 0.3 0.3 0.3 0.3

Технічний паспорт

Объем
200
Тип емкости
теплохолодоаккумулятор
Изоляция
в изоляции

Спеціальні пропозиції

No customer reviews for the moment.

16 other products